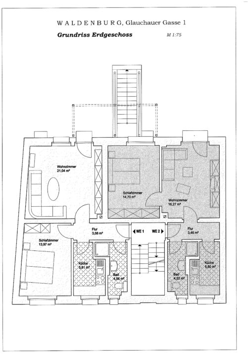
Gemütliche und ruhige 2-Zimmer Wohnung in der Glauchauer Gasse 1 im Erdgeschoss. Fotos folgen noch, Besichtigung ab 02/2026 möglich
Die Stadt Waldenburg hat eine sehr gute Verkehrsanbindung. Die Autobahn A4 ist in kurzer Zeit zu erreichen, die Bundesstraßen B180 und B 175 durchqueren die Stadt. Zum Erholen, Entspannen und Spazierengehen lädt der „Grünfelder Park“ ein.
Stellplatz in der Nähe zzgl. 15,00 €
Zimmer: 2
Fläche: 46,96 m²
Geschoss : EG
Kaltmiete: 355,00 €
Nebenkosten : 125,00 €
Gesamtmiete: 480,00 €
Bezugsfrei ab: 05/2026

